Gîte cosy en Berry avec jardin et parking, proche de Châteauroux, pour 10 personnes - FR-1-591-31
Arthon
propre moyen de transport
Voir le prixPhotos Gîte cosy en Berry avec jardin et parking, proche de Châteauroux, pour 10 personnes - FR-1-591-31
Arthon - Chandaire
Offrant une vue sur le jardin, l’hébergement Gîte cosy en Berry avec jardin et parking, proche de Châteauroux, pour 10 personnes - FR-1-591-31 possède un jardin et une terrasse, à environ 29 km de ce lieu d’intérêt : Golf du Val de lIndre. Cette maison de vacances est à 40 km de : Golf de Dryades.
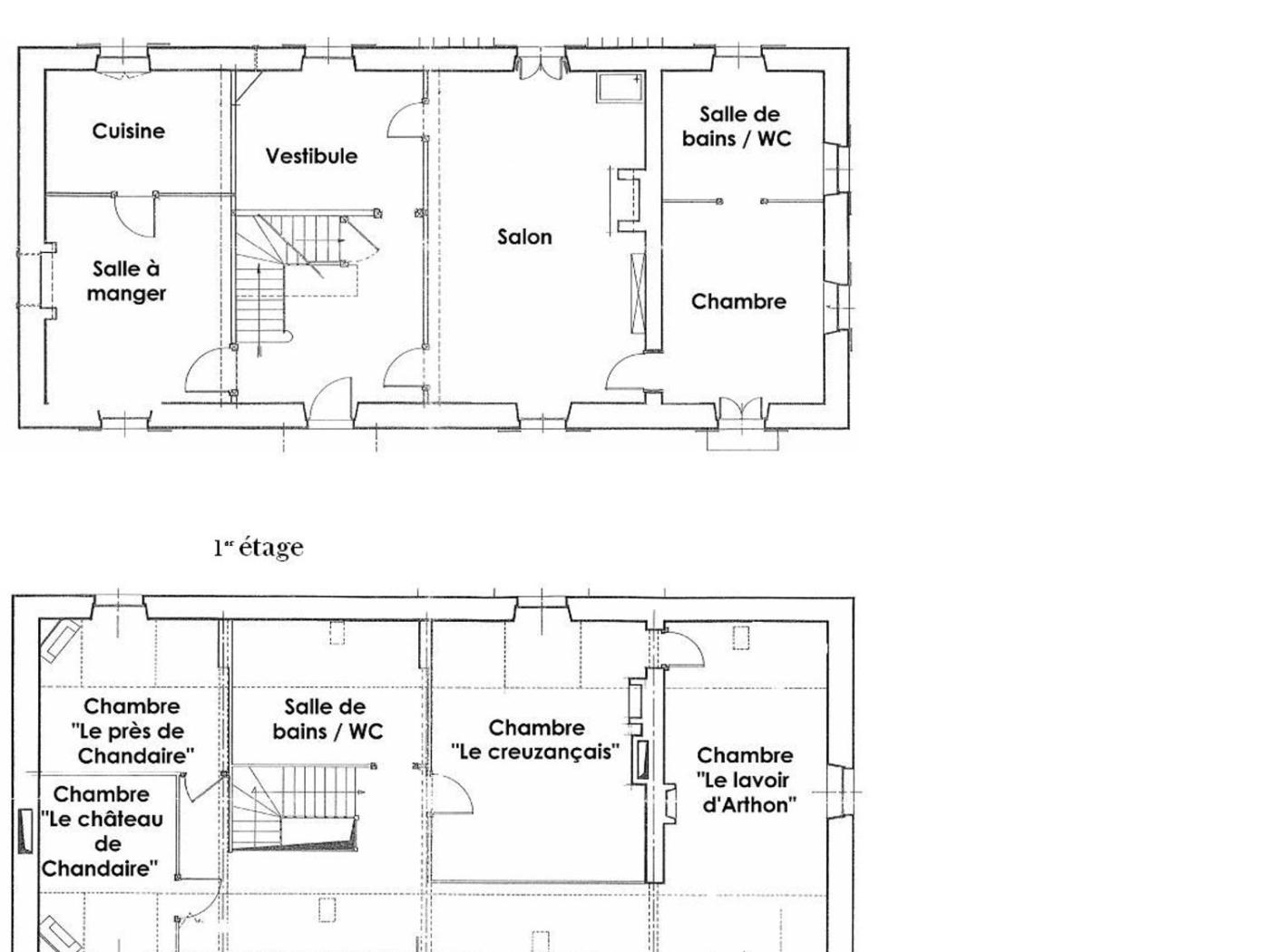
Cette maison de vacances comporte 5 chambres, une cuisine avec un réfrigérateur et un lave-vaisselle, ainsi que 3 salles de bains avec une douche et une baignoire. Cet hébergement 1 étoile comprend un parking privé gratuit ainsi qu’une connexion Wi-Fi gratuite dans l’ensemble de ses locaux.
Laéroport le plus proche (Aéroport de Poitiers-Biard) est à 117 km.
Arrivée à partir de 16:00 et se termine à 10:00.
La remise des clés s’effectue à l’agence responsable de l’hébergement, située à une adresse différente. L’adresse vous sera communiquée par l’agence après réception de lintégralité du paiement de votre réservation, au plus tard 14 jours avant votre arrivée. Les serviettes de toilette et le linge de lit n’étant pas fournis, veuillez apporter les vôtres.Vous devrez présenter une pièce didentité avec photo et une carte de crédit lors de lenregistrement. Veuillez noter que toutes les demandes spéciales seront satisfaites sous réserve de disponibilité et pourront entraîner des frais supplémentaires.
Veuillez informer létablissement à lavance de lheure à laquelle vous prévoyez darriver. Vous pouvez indiquer cette information dans la rubrique « Demandes spéciales » lors de la réservation ou contacter directement létablissement. Ses coordonnées figurent sur votre confirmation de réservation.
Les enterrements de vie de célibataire et autres fêtes de ce type sont interdits dans cet établissement.
Maison de Vacances. This holiday homes special feature is the fireplace. Featuring a private entrance, this spacious holiday home also comprises 5 separate bedrooms and 3 bathrooms with a bath and a shower. Guests will find a refrigerator, a dishwasher, kitchenware and a microwave in the fully equipped kitchen. The holiday home also provides guests with a barbecue. Boasting a terrace with garden views, this holiday home also provides a washing machine and a TV. The unit offers 9 beds.
Informations complémentaires sur l´offre fr - Arthon - Gîte cosy en Berry avec jardin et parking, proche de Châteauroux, pour 10 personnes - FR-1-591-31, les avis des vacanciers ainsi que les dates disponibles sont à retrouver sur le site notre associé.
Réserver
L´offre de notre partenaire: Booking.com BG.6603945









